PROJECT II
Contextual Fit

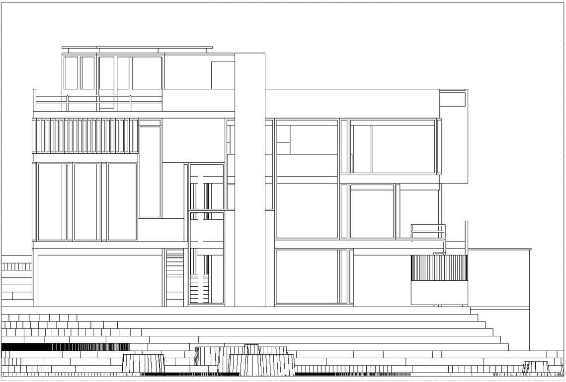
The aim was to create a unique addition to an existing building using the principles of hierarchy, circulation, and structure, among others.This project was based on Richard Meier's Smith House.I will explain my analysis of the original structure and the approach I took when it came to designing my own additions.
CONTEXTUAL ANALYSIS
I started by going over how the original building was structured. Below is a table showing the organization across all three floors.

CONCEPTUAL IDEAS
PRELIMINARY DESIGNS




RESULT
FLOOR PLANS

ELEVATIONS




SECTIONS


EXTERIOR VIEWS




INTERIOR VIEWS
COMPARISON

CLOSING THOUGHTS
Buildings should fit into their surrounding context. This applies to new additions to buildings as well.Studying the methods by which a building is organized can help you design something that fits its context.